Дом 240 м² на участке 15 сот.

19 800 000₽

Характеристики

  • Площадь участка: 15 сот.
  • Площадь дома: 240 м²
  • Этажей в доме: 2

Описание

Дом два этажа и мансардный полноценный этаж.
Конструкция стен: кирпич двойной, утеплитель 130мм и облицовочный кирпич ручной формовки на кладочной смеси quick-mix бежевого цвета. Кровля из металлочерепицы и утеплитель 200мм. Окна Rehau с энергоэффективными стеклопакетами и зашитой от солнечной радиации. Благодаря такой конструкции дом можно отнести к энергоэффективному и имеет хорошую тепловую инерцию.
Дом находиться в стадии черновой внутренней отделки. Стены оштукатурены, разведено электричество. Делаются работы по отоплению и финишная штукатурка. Заведены свет (30кВт, вода и канализация септик Юнилос на человек). Пробурена абиссинская скважина.
Делается отопление с емкостным баком (1,5м3) для ночного нагрева теплоносителя. Первый и второй этаж теплые полы и радиаторы.
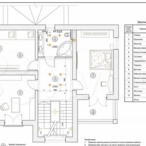
Первый этаж, гостиная, кухня, с/у, гардеробная, терраса.
Второй этаж 3 спальных два с/у (ванная и туалет раздельно)
Мансарда свободной планировки.
Перекрытие между первым и вторым этажом монолит. Фундамент ленточный на 1,7м глубиной.
Планы прилагаются. На данной стадии можно внести изменения в планировку.
Откатные ворота с электроприводом и забором по периметру из профлиста.
Рядом платформа Раменское (45 минут до казанского вокзала и 25 минут до выхино).
Рядом детские сады, школы, магазины.

Дом продаётся с чистовой отделкой первого и второго этажа и готовым для круглогодичного проживания. Срок завершения работ до 01 мая 2022г.
Газ 2кв. 2022 года
Дом оформлен в 2018г. под ПМЖ с возможностью прописки.
Асфальт практически до самого дома.
Строился для личного пользования из качественных натуральных материалов. Продается по финансовым причинам. Цена обсуждается.

Адрес

Московская область, Раменский г.о., д. Клишева, ул. Дружбы


Сеть городских порталов: Купить квартиру в Твери